Pular para o conteúdo principal

Morumbi 1

Local
São Paulo - SP
Ano do projeto
Área construída
575 m²
Área do terreno
678 m²

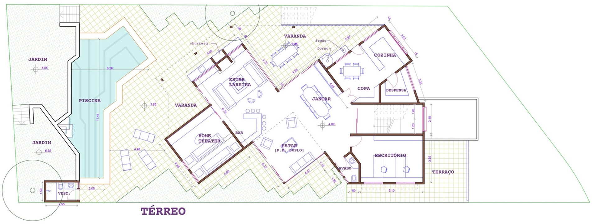
Próxima a uma chácara arborizada, situação rara na cidade de São Paulo, essa ampla residência tira partido das agradáveis vistas do lado direito e aos fundos do terreno, para onde se abrem os principais ambientes. O terreno amplo permitiu a distribuição dos ambientes em 45 graus, tirando melhor partido da insolação e criando recantos ajardinados ao redor de toda a casa.

Vista lateral

Ambientes de estar

Planta do pavimento térreo

Planta do subsolo, onde estão os acessos à casa.

Planta do pavimento superior

Compartilhe:
Olá, visitante!

Login